令和07年11月29日 10時44分 更新
次回更新予定日:令和07年12月1日
本町物件情報
・・・本日入荷およびデータ更新
・・・入荷後1週間以内
・・・間取あり
・・・写真あり
居住用物件一覧へ
トップページへ
物件番号
所在地
価格
バス
徒歩
土地面積
建物面積
間取
構造
築年月
引渡時期
詳細
画像
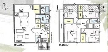
Bk456
東京都小金井市本町3丁目
7,390万円
−
14分
124.77m
2
97.2m
2
4LDK
木造
R08/01
令和08年01月下旬
地震に強い耐震等級3の住宅。全3棟現場の2号棟です。
〈小金井市本町/新築一戸建て〉
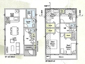
Bk457
東京都小金井市本町3丁目
7,590万円
−
14分
159.18m
2
98m
2
4LDK
木造
R08/01
令和08年01月下旬
地震に強い耐震等級3の住宅。全3棟現場の3号棟です。
〈小金井市本町/新築一戸建て〉